現代簡約辦公樓裝修設計 身所文化發展有限公司
步入身所文化發展有限公司辦公空間內,首先映入您眼簾的是現代簡潔、充滿魅力的前臺空間、北歐風小家具提升整體氛圍,“熱力四射、陽光青春”,這是海博裝飾為身所量身定制的辦公空間!辦公室區域精致的抽象畫,結合大面積的自然采光,使得整個空間富麗,新穎別致。沿用北歐風家具輕巧纖細的曲線裝飾更升華了身所辦公樓裝修設計空間的整體韻味。木色地面,時尚簡約休閑椅,白色墻壁,燈光投射恰如其分,空間鮮活鮮活的,就像是年輕人的生命,充滿陽光、朝氣。【身所一號樓】

身所文化發展公司辦公樓裝修設計

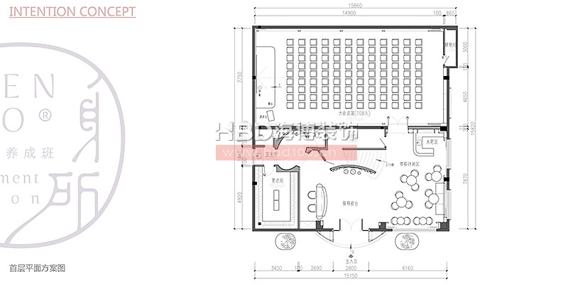
身所文化發展公司辦公樓裝修設計 首層平面方案

身所文化發展公司辦公樓裝修設計 二層平面方案

身所文化發展公司辦公樓裝修設計 一層大廳

身所文化發展公司辦公樓裝修設計 一層樓梯廳

身所文化發展公司辦公樓裝修設計 一層更衣間

身所文化發展公司辦公樓裝修設計 一層教科室

身所文化發展公司辦公樓裝修設計 一層衛生間

身所文化發展公司辦公樓裝修設計 二層辦公大廳

身所文化發展公司辦公樓裝修設計 二層辦公大廳

身所文化發展公司辦公樓裝修設計 二層辦公大廳

身所文化發展公司辦公樓裝修設計 二層辦公大廳

身所文化發展公司辦公樓裝修設計 二層董事長辦公室

身所文化發展公司辦公樓裝修設計 二層股東辦公室

身所文化發展公司辦公樓裝修設計 二層接待室

身所文化發展公司辦公樓裝修設計 外立面夜景
- 上一案例:南航集團(中國)辦公室裝修設計
- 下一案例:北島創意園辦公樓裝修設計 身所文化發展有限公司
137-1150-4887
在線咨詢
