科技公司辦公室裝修設計提案分享
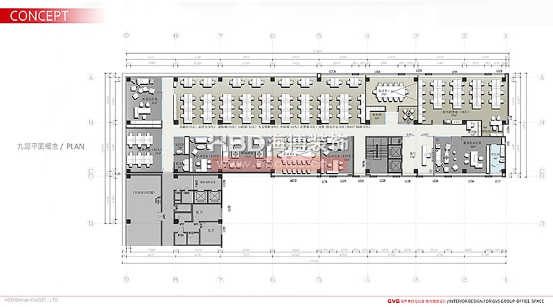
廣州大學城視聲集團辦公室裝修設計方案簡約時尚、具備科技感。項目總面積約3103㎡,要求高利用率,在整體大氣的前提下,能盡量容納多辦公桌,騰出更多辦公區域。5樓為集團主要對外樓層追求商務高格調,4樓為主要辦公樓層追求簡約有創意點,讓來訪的客人對智能控制系統在公裝、家裝應用中有更直觀的感受。

科技公司辦公室裝修設計提案分享

科技公司辦公室裝修設計提案分享

科技公司辦公室裝修設計提案分享

科技公司辦公室裝修設計提案分享

科技公司辦公室裝修設計提案分享

科技公司辦公室裝修設計提案分享

科技公司辦公室裝修設計提案分享

科技公司辦公室裝修設計提案分享

科技公司辦公室裝修設計提案分享

科技公司辦公室裝修設計提案分享

科技公司辦公室裝修設計提案分享

科技公司辦公室裝修設計提案分享

科技公司辦公室裝修設計提案分享
更多辦公室裝修設計動態:http://www.jinxiangli.com/hbdt/
本文出處:http://www.jinxiangli.com/
詳詢180-2620-7127/李經理
本站部分文字及圖片來源于網絡,版權歸原創者所有,如有侵權請及時通知我們。 180-2620-7127 李小姐
137-1150-4887
在線咨詢
