科技公司辦公室裝修設計提案分享 信維電子科技
本案科技公司辦公室裝修設計項目海博裝飾主創設計師將通過明亮、鮮艷、跳躍的顏色作為點綴,刺激工作人員的想象力。墻面、地板乃至桌椅的色彩也能反映出企業特有的精神面貌。同時運用燈光及一些隔斷裝飾舒適地賦予了企業科技感和現代感。

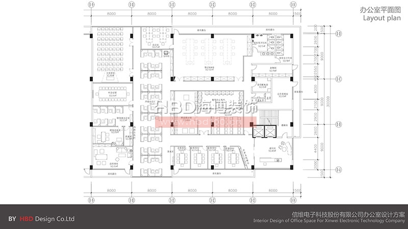
電子科技公司辦公室裝修設計

電子科技公司辦公室裝修設計

電子科技公司辦公室裝修設計

電子科技公司辦公室裝修設計

電子科技公司辦公室裝修設計

電子科技公司辦公室裝修設計

電子科技公司辦公室裝修設計

電子科技公司辦公室裝修設計

電子科技公司辦公室裝修設計

電子科技公司辦公室裝修設計

電子科技公司辦公室裝修設計

電子科技公司辦公室裝修設計

電子科技公司辦公室裝修設計

電子科技公司辦公室裝修設計

電子科技公司辦公室裝修設計

電子科技公司辦公室裝修設計

電子科技公司辦公室裝修設計

電子科技公司辦公室裝修設計
了解更多廣州裝修設計公司動態資料 http://www.jinxiangli.com/hbdt/
本文出處:http://www.jinxiangli.com/
辦公室裝修設計詳詢李經理/180-2620-7127
本站部分文字及圖片來源于網絡,版權歸原創者所有,如有侵權請及時通知我們。 180-2620-7127 李小姐
137-1150-4887
在線咨詢
