海岸萬和城簡約別墅裝修設計
面積 :300平方米 / 地址 :吳川市海岸萬和城 / 點擊 :515
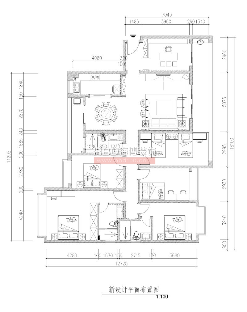
本項目位于吳川市,HBD團隊設計主要圍繞著春天的遐想,以簡潔明快的設計風格為主調,以春的氣息給人帶來遐想,從而創造一個溫馨,健康浪漫的家庭環境。客廳典雅,高貴的氣質見長,在顏色上使用淺色,體現了空間的寬敞,但又使用一些不失沉穩的深色裝飾融合在里,成為不可或缺的一道風景。材料與家具突出了室內的文化氣質,更好的體現了主人的氣質與修養。歐式的水晶吊掛燈飾在光線的折射中間閃閃發光給整個空間注入了靈動的氣息。
- 上一案例:珠江新城嘉裕公館裝修設計
- 下一案例:高品位別墅裝修設計






137-1150-4887
在線咨詢
